Área do Cliente
|
Acesse pelo celular

Casa Padrão - Castro Alves Residencial para Venda em Bagé

|
Compartilhe:
Total para Acessórios valores sujeitos a alteração.

Venda

(ITBI, Registro, Escritura e Certidões)
Consulte-nos
Residencial
Finalidade
1961
Referência
4
Dormitórios
1
Suite
3
Banheiros
1
Garagem
200.00 m²
A. Terreno
247.00 m²
A. Construída
Descrição do Imóvel

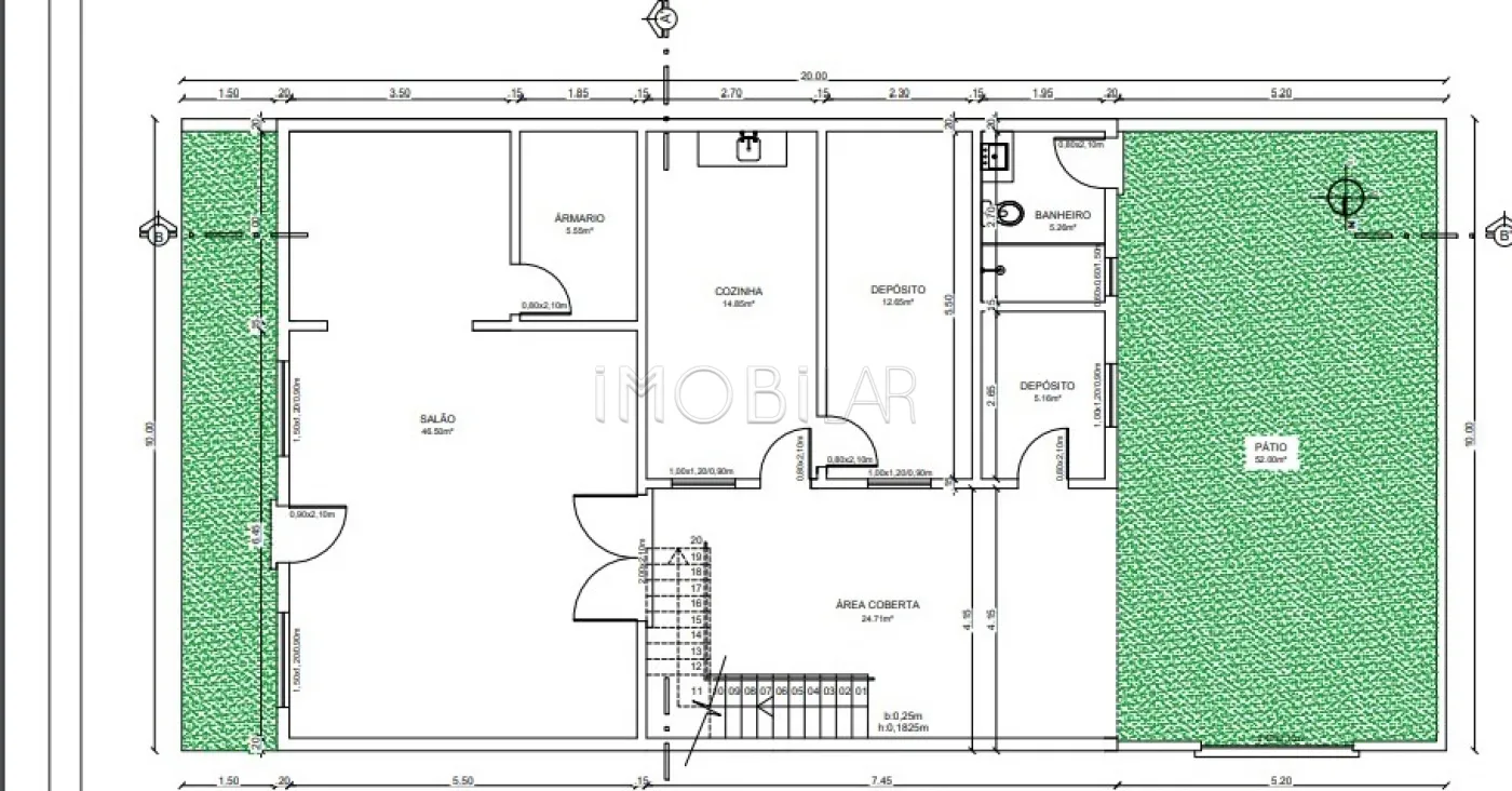
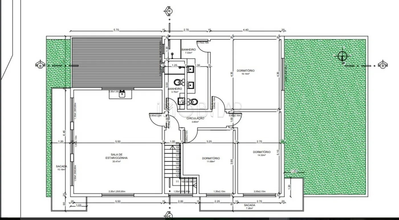
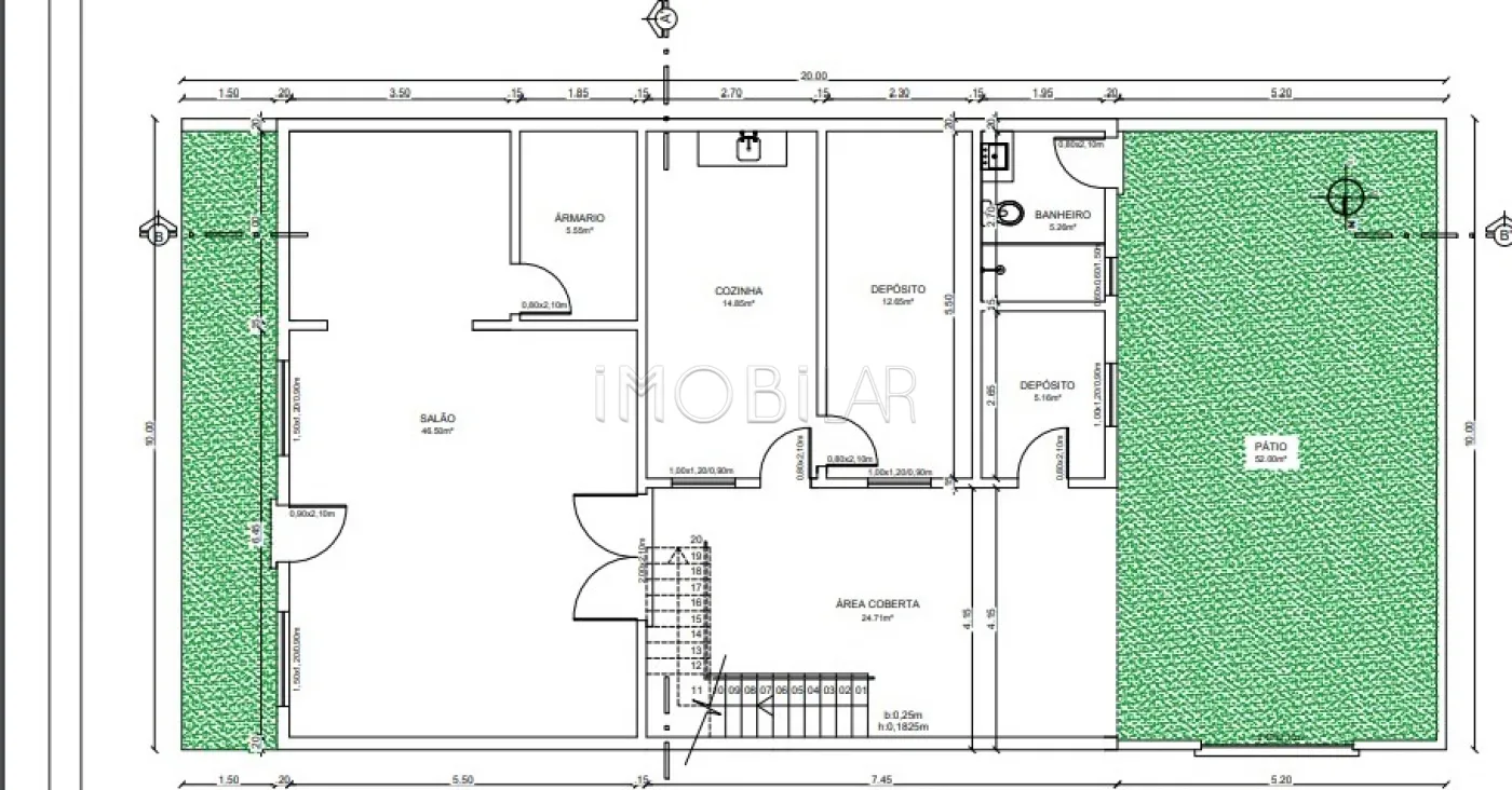
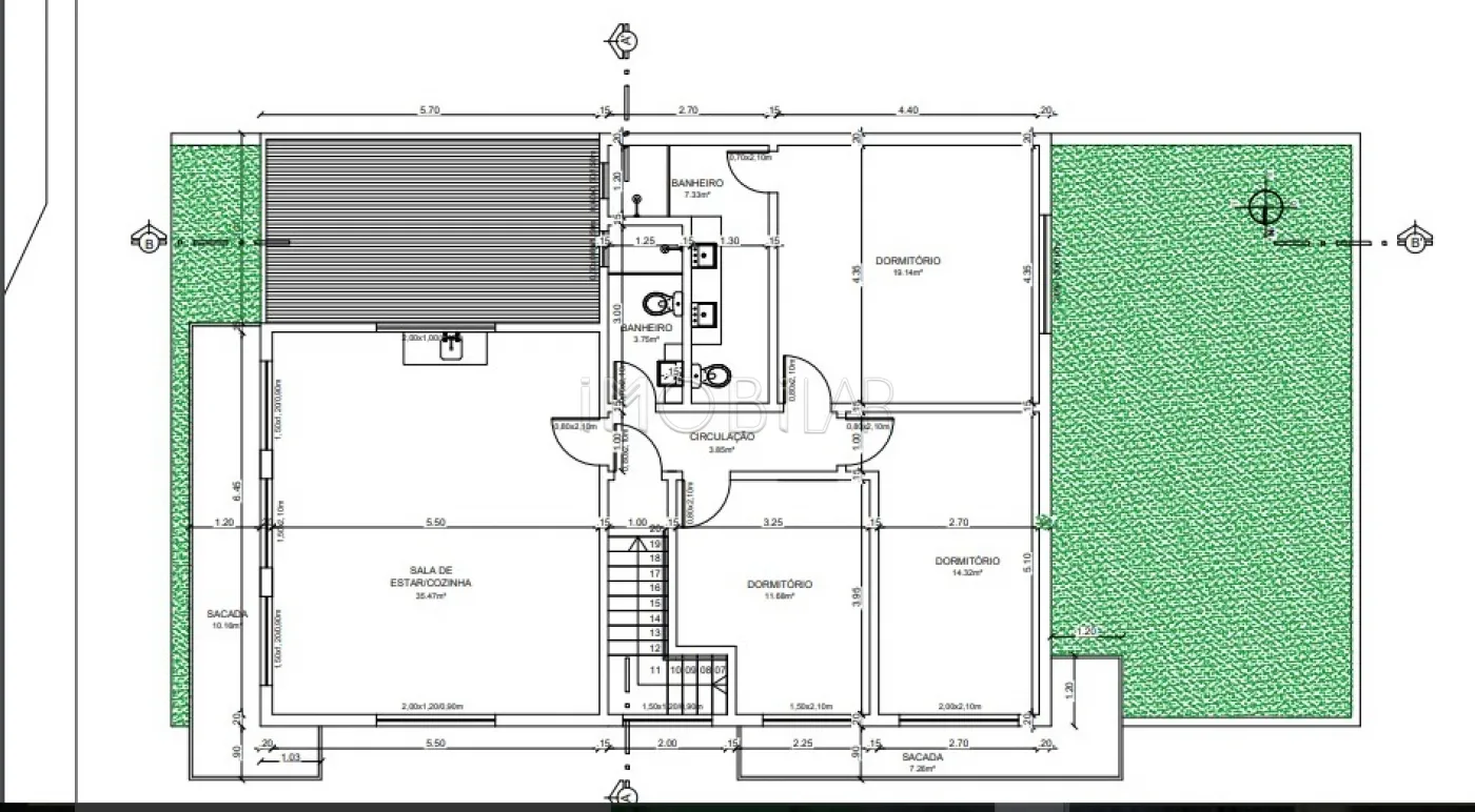
Imobilar vende casa de esquina em fase de construção, de fácil acesso e a apenas uma quadra do asfalto da Rua Angélica Jardim. O sobrado está em um terreno de 200 metros quadrados , tendo como área privativa construída o total de 247 metros privativos depois de pronta ( deverá ser concluída pelos novos adquirentes, será vendida no estágio de obra em que se encontra).
Casa ampla, de dois pisos, com ótima orientação solar pela posição do terreno. Possui 1 vaga de garagem externa (pátio), 4 dormitórios, sendo uma suíte, distribuídos da seguinte forma, 3 na parte superior, tendo mais um banheiro que atende o que não é suíte, e na parte de baixo, um dormitório e banheiro, lavanderia.
Agende uma visita ao local ou solicite mais informações junto aos nossos corretores.

Itens do Imóvel

Domitórios : 4
Salas : 1

Simule um Financiamento

Localização Casa / Padrão em Bagé


Venda

(ITBI, Registro, Escritura e Certidões)
Consulte-nos

Total
180.000,00
ou
Qual o melhor dia e horário para você?
Continuar
Onde deseja encontrar nosso corretor?
Continuar
Confirmar dados da visita
Fazer Agendamento
Cadastre-se
Concordo com os Termos e Privacidade

DÚVIDAS SOBRE O IMÓVEL
PREENCHA O FORMULÁRIO


Concordo com os Termos e Privacidade
Imóveis Similares